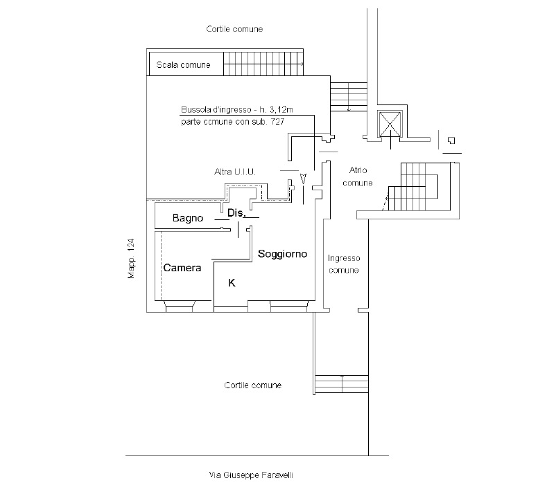
Via Faravelli 7 - Milano
Immagina di vivere a due passi da CityLife, in una via tranquilla e residenziale, circondata da servizi, verde e comfort. Ora smetti di immaginare: questa è Via Faravelli.
Ogni dettaglio è stato studiato per unire stile e praticità:
€435.000,00
Aggiunto: Ottobre 21, 2025
€190.000,00
Aggiunto: Novembre 7, 2025
€180.000,00
Aggiunto: Ottobre 22, 2025
Milano – Via Caltagirone | Ampio 2 Locali
Possedere una casa è un elemento fondamentale della ricchezza... sia economica che emotiva.
Suze Orman